Ref. HPN1SV88
$336,840
Ras El Hikma Bay, Marsa Matrouh
  • Bedroom 6
  • Bathrooms 6
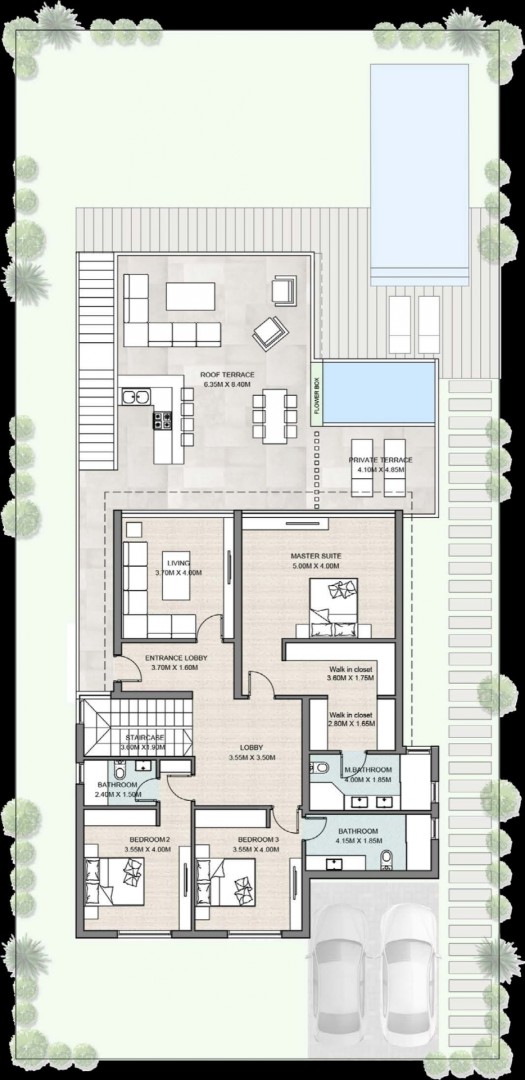
  • Area / Size (sqm) 240 m²
  • Status Under Construction
  • Ownership Type Own
  • Availability Available
  • Basement No
  • Furnished Unfurnished

Property Details

  • Floor Ground Floor
  • Floors 3
  • Parking Uncovered
  • Parking Spaces 1
  • Furnished Unfurnished
  • Elevator Yes
  • Parking Uncovered

About the project

Spread across 240 feddans, Seashore is an elevated seaside haven that overlooks a green oasis of lush palm trees and striking bougainvillea shrubs, while featuring contemporary architecture.

Find the path to revitalization through nature at Seashore, where one's mind, body, and soul are set free.

View project

About Egypt

Formation and early history

Learn more