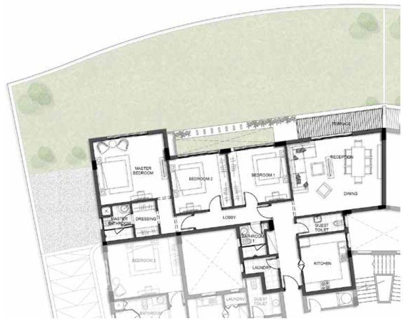
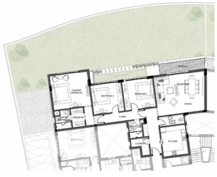
• Bedroom 3
  • Bathrooms 3
  • Area / Size (sqm) 165 m²
  • Status Under Construction
  • Ownership Type Own
  • Availability Pending / Reserved
  • Basement No
  • Furnished Unfurnished

Property Details

  • Floor 3
  • Floors 1
  • Furnished Unfurnished

About the project

Joulz consists of 1,150 residential units containing an array of apartments, townhouses, twin houses, and stand-alone villas; all resplendently designed to be illuminated by natural light. Joulz has more than just artful homes; it creates a habitat of well being that its community deserves. Following an eco-friendly philosophy, all of the units in Joulz have been especially designed to provide the best of Egypt's climate, sunny days and cool air through greenery installed inside each home to acclimatize the temperature, keeping the air fresher and cleaner. A healthy glow is retained through the dedicated jogging and bicycle lanes surrounding the vast verdure between the residential areas, providing the chance to practice healthier daily habits that are hard to sustain in the city. Apart from unmatched views and vast landscapes, Joulz possesses a fully equipped clubhouse, two professional sport's fields, and many lively children's playgrounds, among other facilities that serve its distinguished community.

The name Joulz is appropriated from Joules, the unit used to measure photons, the fundamental particle of light-without which life would not be sustainable. On that premise, Joulz' architecture harnesses this light to transport its community from the smog of the city to radiance, doing so by integrating natural elements inside each home to create a cleaner and healthier lifestyle.

View project